94040
5 Bed
3.5 Bath
3,225 SF
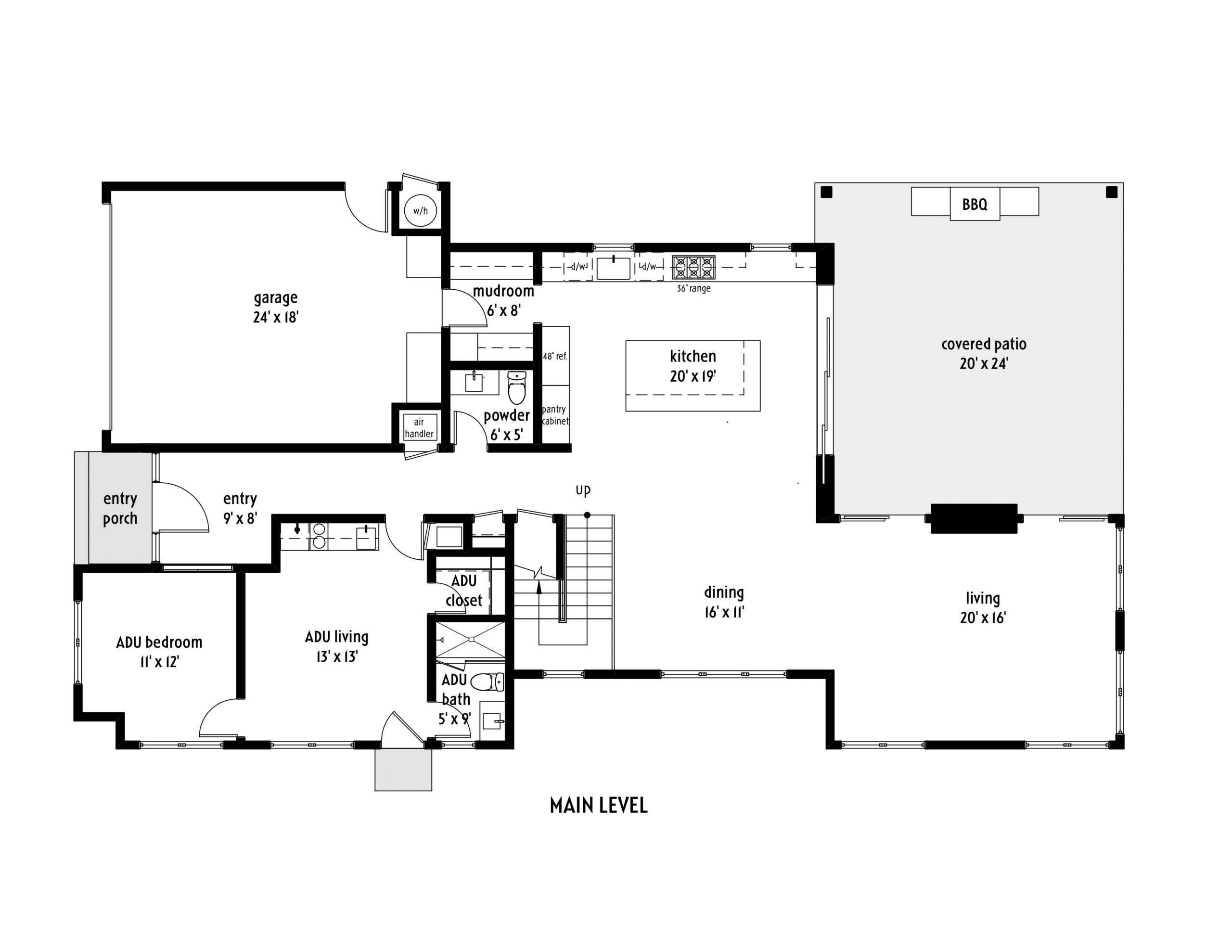
Indulge in the epitome of contemporary living within Mountain View’s sought-after Waverly Park neighborhood, where architectural brilliance meets modern luxury. Crafted by the esteemed architect Pearl Renaker of Tektive Design, this residence boasts 5 bedrooms, 3.5 baths, and 3,225 square feet of meticulously designed space. Immerse yourself in seamless indoor-outdoor living through panoramic sliding patio doors, effortlessly connecting the impressive 466-square-foot covered patio to the kitchen and dining areas. Upstairs, discover a sanctuary with 4 bedrooms, 2 baths, and a versatile loft, while the lower level hosts a full suite within the attached ADU. Outside, the sprawling backyard, spanning nearly 60 feet in depth, awaits your personal touch, promising an oasis for bespoke design. With full planning approval secured, building permits are anticipated within 4-6 weeks. Purchase price is all inclusive, and wraps in the construction bid of $1,550,000 by Deco Development (Lic 964507). Personalization options open to discerning tastes. Estimated move-in timeframe of Fall 2025. Inquire about financing options and construction process.
Amenities:
Schools:


Complete the form to access listing and disclosure documents.

Find out how Kevin can help you navigate the complex process of finding and purchasing a home. Learn More

Find out how we can help you prepare your home for the competitive market and maximize its value. Learn More